• 01
    Thinking
  • 02
    Method
  • 03
    Drawings
  • 04
    Work
  • 05
    Resources
  • 06
    Contact

Engineers
for
architecture

04
Work

  • All
  • Completed
  • Under Construction
  • Under Design

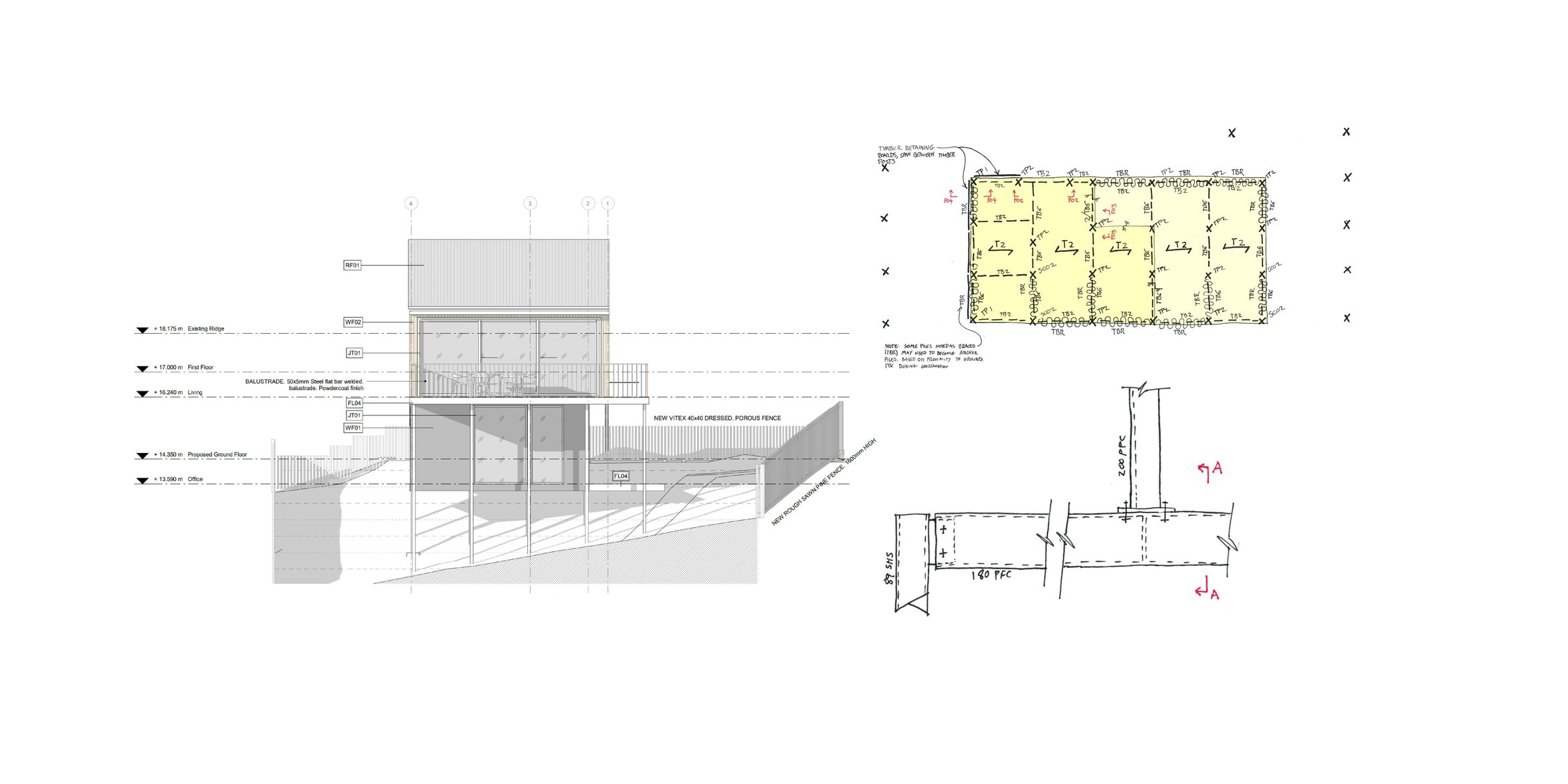
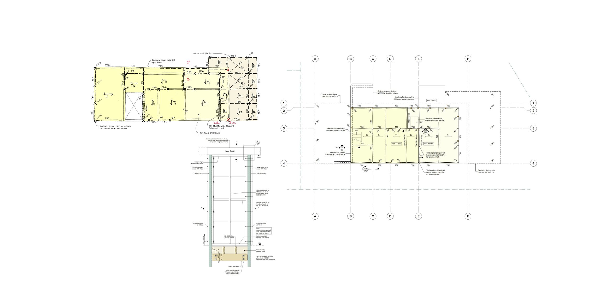
Faulder Ave

Better Days Studio

Faulder Ave
Faulder Ave
Faulder Ave
Faulder Ave